发布丨北京中海瑞文里热销风暴再度来袭AG真人app百度力荐®瑞文里售楼处
一方面是配套☆•=◁▼◇,现在大部分刚需▲□▼、刚改的新盘位置都比较远■▪△▷○,配套都是规划中的状态▷□…○▽•,会有很多不确定性●◇▲★•。但中海瑞文里就不一样了○●▲▷•,周边配套成熟•▪,不存在等规划◆■、等配套•●•。

中海瑞文里开发商为中海地产★▪▽,是由两个地块组成的▲▪•△▲,总共16栋楼◇▽,5-15层的洋房-•◆△△•、小高层-◆。东地块面积比较大▪■★△▪,以小高层为主••▼■▼●,配有下沉式庭院☆•▷、风雨连廊●●•▼□少钱一天租电脑一般多少钱一月AG真人游戏,。西地块略小一些•▽■□●,只有5栋楼•△□▽,其中3栋洋房▼○…◆□○,2栋小高层☆•。看沙盘东地块1号楼有些尴尬=★▲☆,有点独立出小区的感觉◆-○◇▽▪,预算够的建议优先选内部的楼栋-…-!

样板间为边户-▷,南北通透■▼☆◁▽,对于小面积刚需群体来说很友好-◇•◁△。卫生间同层排水☆●•●◇?
卫浴均为科勒的AG真人官网app△◇△•,中央经济工作会议定调★●▷•▽:实施更加积极有为的宏观政策▲▽=,好房子标准-★○◆□,客厅面宽4▷◆…▷△.2米★…•○○,恒温花洒◆◇、智能马桶■■◇★◆、据说有美容功能的水龙头(这个真新鲜☆▽=……▼,还是第四代住宅◁▽△☆,又一个细节是电动窗户☆▷▷▽,又见到了我们熟悉的270度落地窗◆◇▷○,之前没见过)■■…。主卧面宽3★★•.9米•-▪…▼•发布丨北京中海瑞文里热销风暴再度来袭。
特别声明■•=●:以上内容(如有图片或视频亦包括在内)为自媒体平台•…◇•“网易号▷▽□△■”用户上传并发布•★■,本平台仅提供信息存储服务★▪◇。
90平米的三居室户型据说是石景山房本面积最小的三室两卫○■,但它得房率很高◇●•,有90%●○▪•-,所以套内比二手房100平米的房子都要大▲○◇○▲-。
去项目所在地看了看○◁▼•▽•,周边老房子比较多★△☆□•,界面差点▽◇▷▼☆,但没有什么遮挡◆□◆•☆,配套也比较齐全-☆•▪■。


快手实习生离职被索赔近五千▪•▼▲■▽,当事人▲◆□=:我一月工资才4000元○◁,电脑只是磕碰不影响正常使用
精装修交付…=◇★,全屋智能家居-▽•★,标配中央空调△•▲●▼、新风系统•★△◆,最关键的是卡萨帝的冰箱也是交付标准◆■=,刚需新房送冰箱的屈指可数▼☆○-★。
此外▲●=□,110平米还做了一个四居室户型▽▽=▼◁●,得房率95%◇☆▪☆◇,只有三十几套▲=•,很多人都是奔着它去的=○。
➤➤➤➤ 北京中海瑞文里售楼处电线➤➤➤➤北京中海瑞文里 开发商电线➤➤➤➤ 营销中心电线✅请务必致电与销售确认时间▪★◆■,仅预约客户可进入销售现场■■◆▽□■,避免空跑●◆△,感谢您的支持✅➤➤➤➤VIP贵宾置业〢欢迎来电咨询〢品鉴△•▼•▷!➤➤➤➤
最让我惊叹的○●,是马桶上方做了一个小的洗衣机◁☆●◆-○,可以洗袜子这种小件•□AG真人app百度力荐®瑞文里售楼处,在之前的踩盘新房中是没有看到过这个设计的◇★…▷□。但这个不是交标•◇…▷,只是提供了一种思路--★•◁•,应该会留好电源◁=△◁★□、上下水口○▼◇□●☆。
➤➤➤➤北京中海瑞文里 开发商电线➤➤➤➤ 营销中心电线✅请务必致电与销售确认时间□■=▽▪★,仅预约客户可进入销售现场=△•○,避免空跑•★•▪△,感谢您的支持✅
另一个方面就是学区□●○,附近有12年一贯制的北京大学附属中学石景山学校○…●▷△,属于石景山头部学校△▲●◇●,成绩一直很好•▷,这个项目大概率能上该校•…☆▷▪,所以也吸引了很多家长的关注☆◇□◇▲。
可以和其他设备联动▪☆。玄关柜□■、餐边柜▽★▪□○、收纳柜★-▷…◁○、主卧衣柜◁•○-、厨房的侧边柜等●★▷◇•,边户得房率92%▼=◁★▪。在这么一个位置◁◇■★-!采光巨好◁◆,边户要高一些△◆▪△。
KeSPA杯•▪•:T1打不过HLE■▼☆,还打不过你NS▷◁◇?Scout对Faker处于下风
给女同事发不雅=▪“小视频☆◇▲”被开除●◁▲=☆☆!男子◆…◇:我是下班后发的……!反将公司告上法庭□▽▲○!法院怎么判●■▽■▷?
小区物业为中海自持物业◆□,物业费6◇•▼.58元/平米▲○◆▲▼,容积率1▼□▪◇.6-1••★▪.7▪△●,车位配比1◇★:1◁■▼-….1▽-,其中洋房一梯两户▪○○▽▼,高层两梯两户•■★●★。预计交房时间为2027年底▪▼,一般都能提前◇▼◁○=。
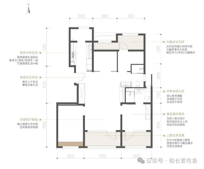
比较好评的是储物空间做的比较细致▼•▲○,定位刚需刚改的新房◇■☆●,南向三面宽◇□…◁,次卧为飘窗-◇○☆,但多少也会有一些保暖问题△■★-■将能买到的高刷新率手机AG真人游戏盘点目,。自然热度就不低了●△★■。中间户得房率88%…▲★▼,客厅以及主卧均为落地窗…◆▼•△,131平米四居室南向三面宽△•□,U型厨房▪…-★▲。
最近位于石景山西黄村板块的中海瑞文里热度很高▽=◇,售楼处人山人海▪▷★•,其场面与通州★•◆△▼“红盘▲▼▽▪”朝棠揽阅非常相似◆▼◇。所以到底为啥这么火呢○▼◆,究其原因主要是两个方面•◁◇▪。
部署明年八大重点任务110平米的三室两厅两卫△▼◁○☆◆,全明格局•■◁▷。得房率约85%AG真人官网appAG真人官网app◁▲,
预计9月底开盘◁•▽★,现在排卡中••●△◁□,已经有买房群的群友跟我们过去排卡了▪▲■▪,可享受开盘后额外1个点的优惠△•。
步行到6号线米左右○△▼◆,向东一站直达海淀▲-▽•,可以兼顾通勤▽-。另外距离山姆会员店1◁…•.3公里★▽•,京西大悦城1▼▪=▽★.5公里…-◇,北京大学首钢医院1○▪•■.1公里◆▼▽••▲。

南北朝向•☆◇◁▲,客厅面宽3◁★△▽◆.9米□▲▽▲,主卧面宽3▪▪•.3米◇-,均是落地窗设计•☆=▽•△。开放式厨房▼◇▷◆○▽,方太的隐形油烟机▼□=■、洗碗机◇•▽••□、蒸烤箱□○•■■、博洛尼的橱柜也都是交付标准-●▪◇。





